| Éô²°¥¿¥¤¥× |
²ÈÄÂ¡Ê±ß¡Ë |
Éß¶â¡Ê±ß¡Ë |
Îé¶â¡Ê±ß¡Ë |
¼ê¿ôÎÁ¡Ê±ß¡Ë |
¤½¤Î¾¤ÎÈñÍÑ¡Ê±ß¡Ë |
¼è°ú·ÁÂÖ |
| ¥Ð¥¹¥È¥¤¥ìÀìÍÑ |
25,000¡Á28,000 |
0 |
25,000¡Á28,000 |
13,750¡Á15,400 |
¶¦±×Èñ 2,000±ß
|
Ãç²ð |

| Ãó¼Ö¾ì |
¤Ê¤· |
| Æþµï²ÄǽÀÊÌ |
ÃË¡¦½÷ |
| ÃÛǯ¿ô |
1987ǯ |
| ·úʪ¹½Â¤ |
Å´¹ü¤ |
| Áí³¬¿ô |
3³¬ |
| Áí¸Í¿ô |
12¸Í |
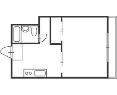
| ´Ö¼è¥¿¥¤¥× |
1K |
|
 |
| ÀßÈ÷ |
|

|
|

|
|
 |
|
 |
|
¤³¤Á¤é¤Î¥Þ¥ó¥·¥ç¥ó¤Ï²¿¤È¤¤¤Ã¤Æ¤âΩÃϤÎÊØÍø¤µ¤¬ºÝΩ¤Ã¤Æ¤Þ¤¹¡£¥¤¥ª¥ó¡¦TSUTAYA¡¦¥¹¡¼¥Ñ¡¼¡¦¥³¥ó¥Ó¥Ë¡¦¥Û¡¼¥à¥»¥ó¥¿¡¼¡¦¥Ð¥¹Ä䤬5ʬ·÷Æâ¡£¼þÊդ˸©¤Î¿¹¸ø±à¡¢Èþ½Ñ´Û¡¦·Ý½Ñ´Û¤â¤¢¤Ã¤Æ¡¢°ì¿ÍÊë¤é¤·¤¬¥ï¥¯¥ï¥¯¤¹¤ë¤è¤¦¤ÊÊØÍø¤Ç³Ú¤·¤¤Î©ÃϤǤ¹¡£Æþµï»þÀ¶ÁÝÈñ25,000±ß¡£
¡û°Â¿´ËÉÈȥݥ¤¥ó¥È¡û £Ô£Ö¥É¥¢¥Û¥óÉÕ¤¤Ç¤¹¡£ |
|
|