| Éô²°¥¿¥¤¥× |
²ÈÄÂ¡Ê±ß¡Ë |
Éß¶â¡Ê±ß¡Ë |
Îé¶â¡Ê±ß¡Ë |
¼ê¿ôÎÁ¡Ê±ß¡Ë |
¤½¤Î¾¤ÎÈñÍÑ¡Ê±ß¡Ë |
¼è°ú·ÁÂÖ |
| ¥Ð¥¹¥È¥¤¥ìÀìÍÑ |
39,000 |
39,000 |
39,000 |
42,900 |
¶¦±×Èñ 3,000±ß
|
Ãç²ð |

| Ãó¼Ö¾ì |
2,000±ß |
| Æþµï²ÄǽÀÊÌ |
ÃË¡¦½÷ |
| ÃÛǯ¿ô |
1993ǯ |
| ·úʪ¹½Â¤ |
ÌÚ¤ |
| Áí³¬¿ô |
2³¬ |
| Áí¸Í¿ô |
6¸Í |
| ´Ö¼è¥¿¥¤¥× |
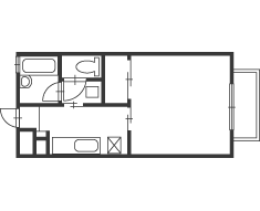
1K |
|
 |
| ÀßÈ÷ |
|

|
|

|
|
 |
|
 |
|
ÀŤ«¤Ê´Ä¶¤ÇÆüÅö¤¿¤êÎɹ¥¤Ç¤¹¡£ ÅÌÊâ·÷Æâ¤Ë¥³¥ó¥Ó¥Ë¡¢°å±¡¡¢Ìô¶É¡¢¾¾ËܱØÁ°ÊýÌ̥Х¹Ä䤢¤ê¤Þ¤¹¡£ ¥¢¥Ñ¡¼¥ÈÁ°¤Ë²Ädz¥´¥ß¡¢ËäΩ¥´¥ß¤Î¥¹¥Æ¡¼¥·¥ç¥ó¤â¤¢¤ê¡¢À¸³è¤¹¤ë¤Ë¤Ï¤È¤Æ¤âÊØÍø¤Ê¤È¤³¤í¤Ç¤¹¡£ ¥¤¥ó¥¿¡¼¥Í¥Ã¥È̵ÎÁ¤Ç¤¹¡£
¡û°Â¿´ËÉÈȥݥ¤¥ó¥È¡û Âç³Ø¤Ë¶á¤¯¡¢Ä̳ØÏ©¤Ë¤Ï³°Åô¤¬¤¢¤êÌë¤Ç¤â°Â¿´¤Ç¤¹¡£ |
|
|